ID CP2758522

Apartament 3 camere Floreasca Aviatiei Up Site parcare boxa

ID CP2758522

399,000 €

Apartament cu 3 camere de vânzare
Floreasca, Bucuresti
88.93 mp
2022

Apartament cu 3 camere în complexul Up-Site, zona Floreasca

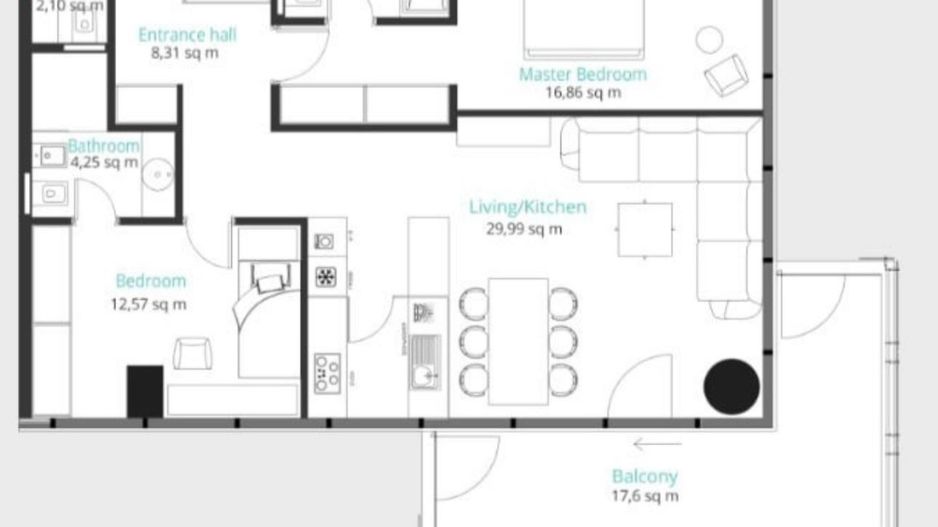
Sky Real Estate vă propune spre vânzare un apartament nefinalizat cu 3 camere, situat în prestigiosul complex rezidențial Up-Site din zona Floreasca. Această proprietate oferă o oportunitate excelentă de investiție, beneficiind de o poziție deosebită și facilități premium.

Detalii apartament:

Suprafață utilă: 89 mp

Compartimentare: Decomandat

Număr camere: 3

Număr băi: 3

Stadiu construcție: Nefinalizat

An finalizare construcție: 2025

Facilități incluse:

Parcare: 1 loc de parcare subteran 30.000 euro +TVA

Boxă: Spațiu de depozitare la subsol

Caracteristici ale complexului Up-Site:

Design modern: Două turnuri de 12 și 25 de etaje, cu fațadă din sticlă și vedere panoramică asupra zonei Floreasca.

Facilități premium: Spa și piscină interioară, sală de sport, juice bar, serviciu de concierge, spălătorie și o terasă suspendată de 3.000 mp cu vegetație naturală.

Dotări interioare: Tâmplărie din aluminiu cu geamuri tripan, parchet din lemn natural multistratificat, încălzire prin pardoseală, sisteme de climatizare eficiente energetic și aplicație Smart Home pentru controlul de la distanță al funcțiilor apartamentului.

Localizare și accesibilitate: Complexul Up-Site este situat pe Calea Floreasca, oferind acces facil la:

Centre comerciale: Mall Promenada

Restaurante și cafenele: Diverse opțiuni în zona Floreasca

Parcuri și zone verzi: Parcul Floreasca și lacul omonim

Mijloace de transport în comun: Stații de metrou, autobuz și tramvai în apropiere

Pentru mai multe informații sau pentru a programa o vizionare, vă rugăm să ne contactați. Această proprietate reprezintă o oportunitate rară de a achiziționa un apartament modern într-una dintre cele mai căutate zone ale Bucureștiului.

Citește mai mult

  • Tip apartament
    Apartament
  • Compartimentare
    Decomandat
  • Număr camere
    3
  • Dormitoare
    2
  • Număr bucătării
    1
  • Număr băi
    3
  • Geam la baie
    Da
  • Etaj
    6
  • Suprafață utilă
    88.93 mp
  • Suprafață construită
    106.53 mp
  • Disponibilitate
    Imediat
  • Confort
    1
  • Stare interior
    Finisat modern
  • Imobil
    Bloc de apart.
  • Stadiu construcție
    Finalizată
  • An construcție
    2022
  • Construcție nouă
    Da
  • Tip construcție
    Beton
  • Număr etaje clădire
    12

Facilități

Apă
Apometre
Canalizare
CATV
Contor căldură
Contor electric
Contor gaz
Curent
Gaz
Iluminat stradal
Internet
Mijloace de transport în comun
Nemobilat
Străzi asfaltate
Telefon
Dorin Ciolan
Manager

0738337815


Solicită chiar acum o vizionare
Telefon
Sună acum Solicită vizionare
Necesare:

Site-ul nu poate funcționa corect fără aceste cookie-uri. Vezi cookie-urile

Statistică:

Strângem statistici anonime despre voi, vizitatorii unici, pentru a vă îmbunătăți experiența dumneavoastră. Vezi cookie-urile

Marketing:

Pentru a ne promova mai eficient serviciile noastre, folosim cookies pentru a vă identifica și a vă oferi proprietăți și servicii personalizate. Vezi cookie-urile

Acest site folosește cookies, află detalii. Alege ce tipuri de cookies dorești să permitem: